




























名古屋を代表する商業・ビジネスの拠点、中区栄3丁目エリア。 2026年6月に開業予定のハイグレードな新築ビルにて、2階ワンフロアのご案内が可能となりました 。
本物件は、高い視認性と洗練されたデザインを兼ね備えた最新鋭のビルです。 ワンフロア占有となる約65坪の空間は、独立性が高く、企業のアイデンティティを体現するのに相応しい品格を備えています 。
内装は「スケルトン」での引き渡しとなります 。 ラグジュアリーなショールーム、完全予約制のサロン、あるいはエグゼクティブ向けのオフィスなど、貴社のビジョンに合わせた自由度の高い空間構築が可能です。
矢場町通に近接する希少な立地で、新たなビジネスの物語を始めてみませんか。✨
📋 物件概要
-
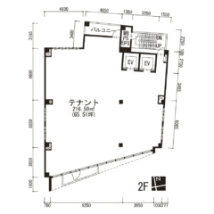
所在地: 愛知県名古屋市中区栄3丁目
-
募集フロア: 2階(ワンフロア)
-
専有面積: 216.59㎡ / 65.51坪
-
月額賃料: 1,657,403円
-
保証金: 12,053,840円
-
竣工年月: 2026年3月
-
入居可能時期: 2026年6月予定
-
建物構造: 地上9階建
-
引渡状態: スケルトン
-
設備: エレベーター2基完備 、バルコニー付
📩 お問い合わせ
詳細資料の請求や現地へのご案内は、DMにて承っております。
守秘義務を遵守し、個別に対応させていただきます。🤝
その他、物件を探すのに相談したい、物件配信を求めている方は
こちらからご登録ください。
飲食店の居抜き物件売却・事業譲渡・M&Aならテンポス
物件情報

| 物件の状態 | スケルトン |
|---|---|
| 所在地 | 名古屋市中区栄3丁目 |
| 前業種 | 新築 |
| 面積 | 216.59㎡ / 65.51坪 |
| 詳細情報 | 🏛️ 【新築】名古屋・栄一等地。ブランドの価値を高めるハイグレード・ワンフロア 名古屋のトレンドを牽引する中区栄3丁目エリア 。その一角に、圧倒的な存在感を放つ新築ビルが誕生しました 。 2026年6月に開業予定の本プロジェクトは、ガラスウォールを多用したモダンな外観が特徴です 。ご紹介するのは、独立性とプライバシーを確保できる2階ワンフロア占有プラン 。 約65坪のゆとりある空間は 、内部に柱の少ないレイアウトとなっており、企業のアイデンティティを反映した自由な空間設計が可能です 。本物件は「スケルトン仕様」での引き渡しとなります 。 ラグジュアリーなショールーム、プライベートサロン、あるいはクリエイティビティを刺激する次世代型オフィスなど、妥協のない空間作りを求めるオーナー様に最適です。 |



